Listing Tools

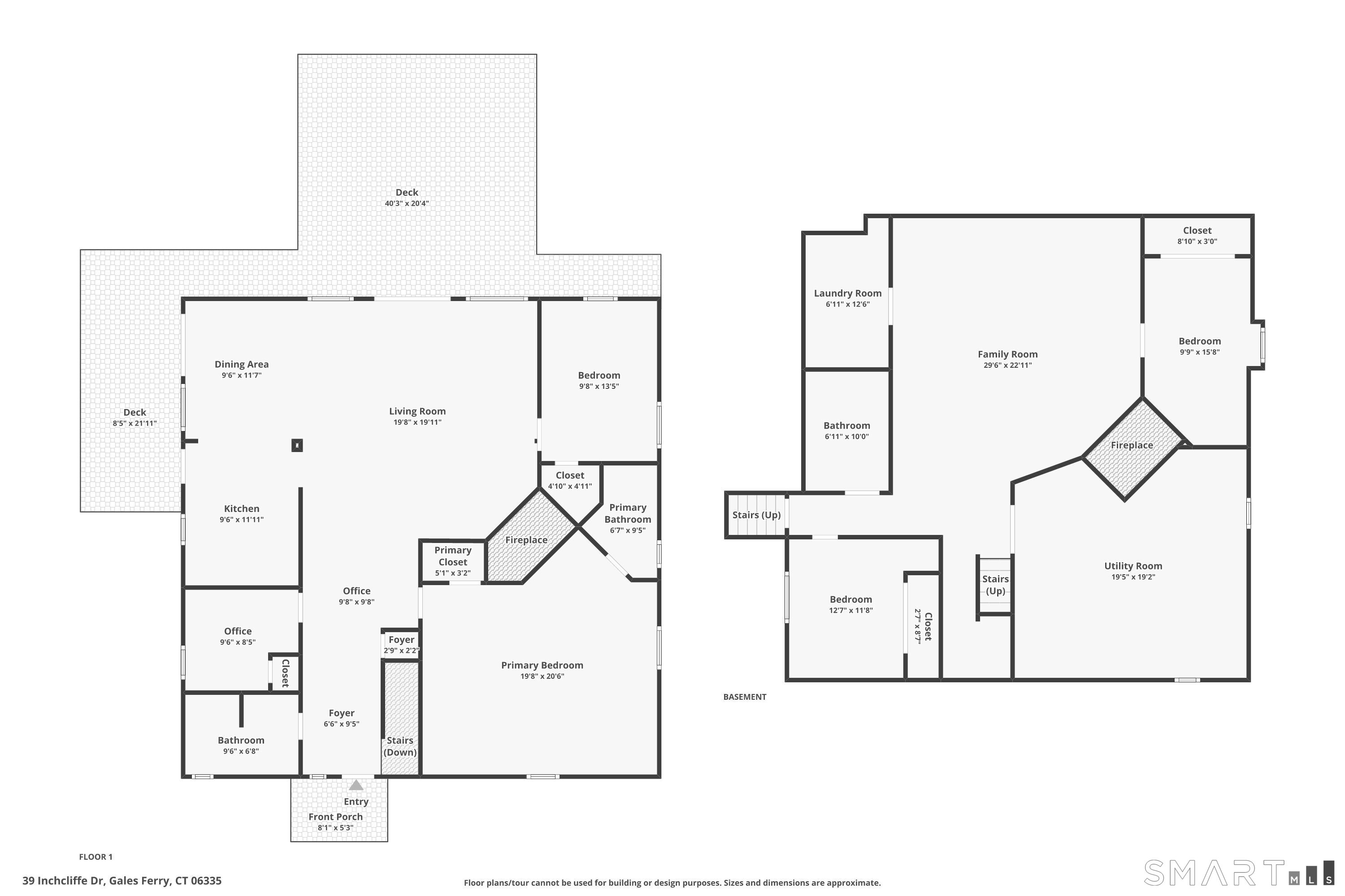
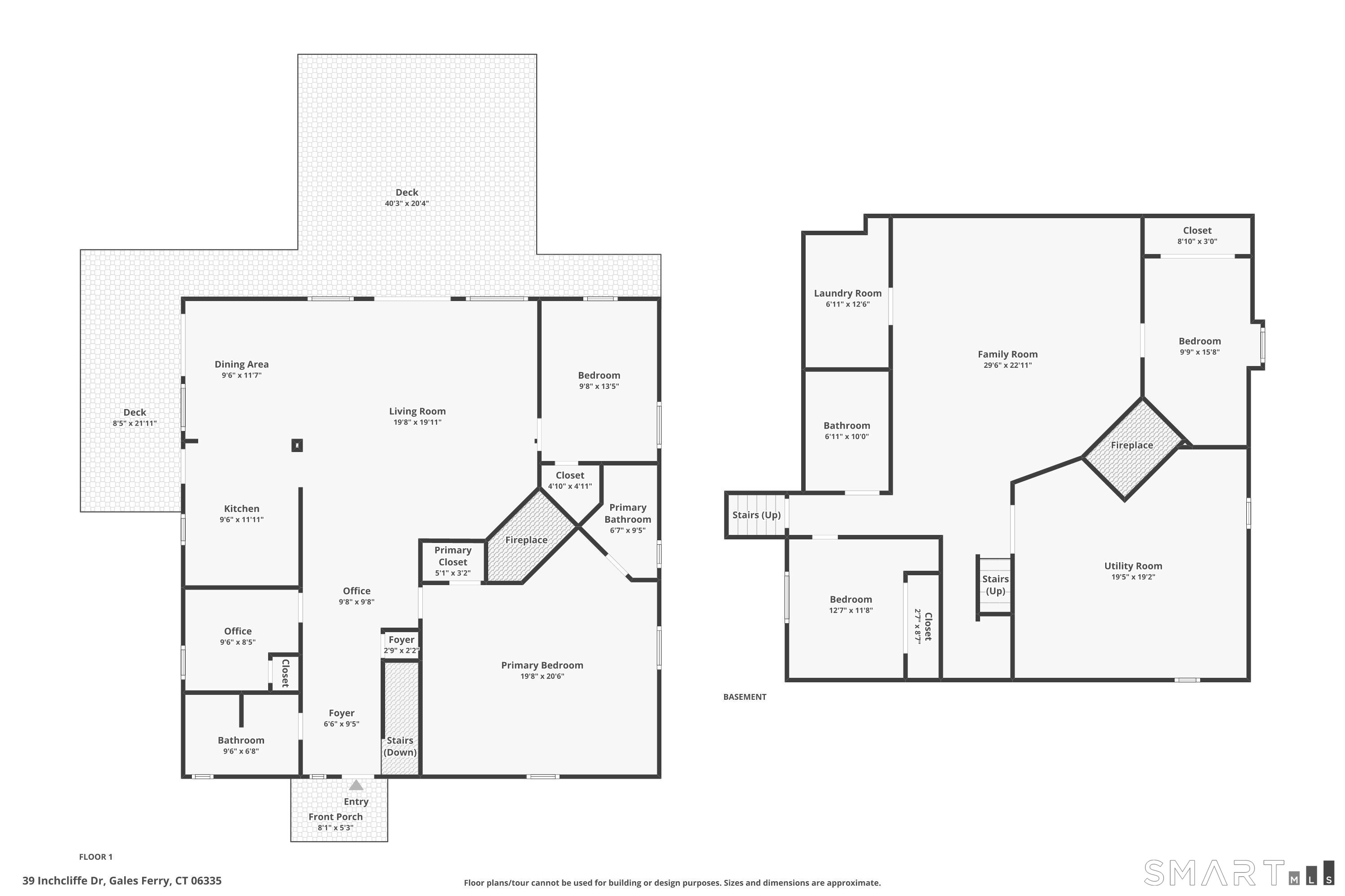
*Offer Deadline - Tuesday 1/27 8 PM* This exceptional Mid-Century Modern 4bedroom, 2.5bath home offers 3,080+ sq. ft. of versatile living space on a generous 1.34acre lot in desirable Gales Ferry, CT - a scenic, peaceful shoreline community along the Thames River with easy access to local amenities, the US Navy Sub Base, Electric Boat and regional commuting routes. Thoughtfully cared for throughout, the home features bright, open living spaces with 3 Fireplacmes, cathedral ceilings and exposed beams that create a welcoming, airy feel. Large windows flood the interior with natural light and provide great sightlines to the expansive, private property.A fully finished basement significantly expands your usable square footage that includes 2 Legal Bedrooms, laundry hookups and additional storage. Outdoors, enjoy ample paved parking, a back deck overlooking the massive concrete side yard, and a partially fenced yard - ideal for outdoor gatherings, gardening, or relaxation in a quiet setting. Built in 1966 and blending contemporary charm with modern livability, this home is a rare opportunity to own a spacious residence with privacy, flexibility, and lifestyle appeal near the shoreline, schools, parks, and area conveniences.

Property Details of 39 Inchcliffe Drive, Gales Ferry

Map Location

Driving Directions

Listed by Kristopher J. Tramont of Real Broker CT,LLC ((860) 884-9511)

The data relating to real estate for sale on this website appears in part through the SmartMLS Internet Data Exchange program, a voluntary cooperative exchange of property listing data between licensed real estate brokerage firms, and is provided by SmartMLS through a licensing agreement. Listing information is from various brokers who participate in the SmartMLS IDX program and not all listings may be visible on the site. The property information being provided on or through the website is for the personal, non-commercial use of consumers and such information may not be used for any purpose other than to identify prospective properties consumers may be interested in purchasing. Some properties which appear for sale on the website may no longer be available because they are for instance, under contract, sold or are no longer being offered for sale. Property information displayed is deemed reliable but is not guaranteed. Copyright 2026 SmartMLS, Inc.

Hi there! How can we help you?

Contact us using the form below or give us a call.

Send Us A Message:

I agree to be contacted by Robin Blomstrann via call, email, and text for real estate services. To opt out, you can reply 'stop' at any time or reply 'help' for assistance. You can also click the unsubscribe link in the emails. Message and data rates may apply. Message frequency may vary. Privacy Policy.

Do not fill in this field:

This site is protected by reCAPTCHA and the Google Privacy Policy and Terms of Service apply.