Listing Tools

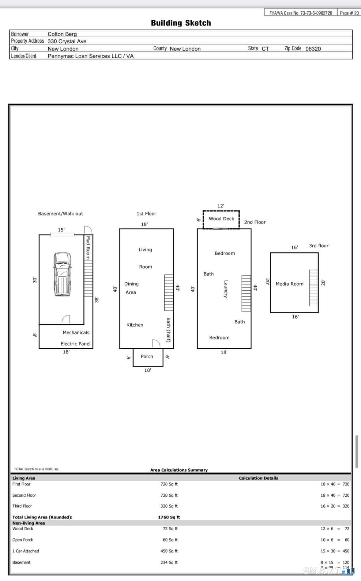
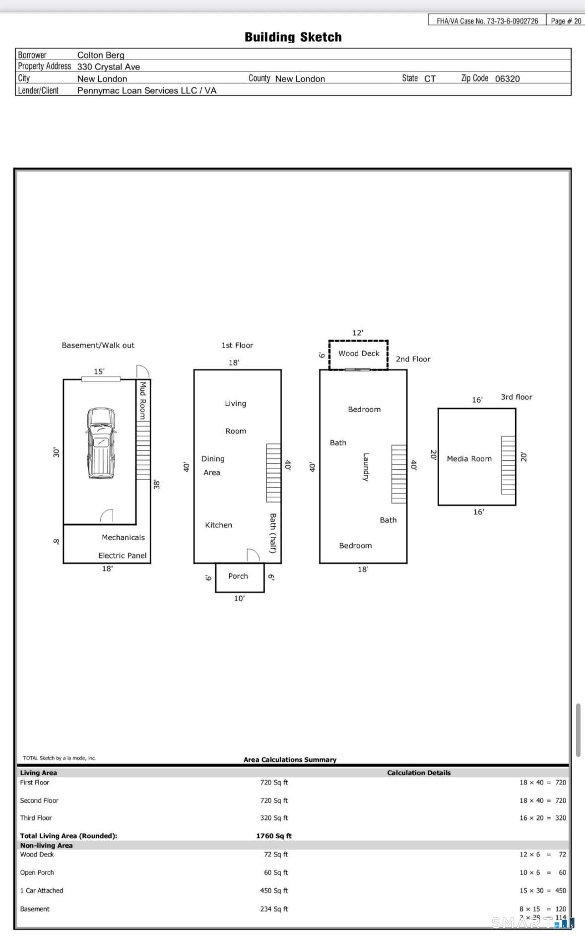
Great location, walking distance to US Coast Guard Academy & Conn College. Newer, rarely available 1,760 sft, 2 bedroom unit with an additional 16' x 15' loft above Primary Bedroom that can be used as a sitting area, gym or office. The main level has an open floor plan with a kitchen appointed with stainless steel appliances, brushed nickel hardware and a L- shaped granite counter that offers additional seating, Living/Room Dining Combo with hardwood flooring. 2nd floor consists of 2 bedrooms, each with their own private full bath, upper full size laundry closet, loft above the primary bedroom. Primary also features an outdoor balcony. The basement features a garage and additional large mechanical/workshop/storage room. Quality construction and easy maintenance is evident throughout this unit. Located conveniently near I-95 for easy commuting.

Property Details of 330 Crystal Avenue, Unit 3

Map Location

Driving Directions

Listed by Denise K. Badiali of Century 21 AllPoints Realty ((860) 604-1981)

The data relating to real estate for sale on this website appears in part through the SmartMLS Internet Data Exchange program, a voluntary cooperative exchange of property listing data between licensed real estate brokerage firms, and is provided by SmartMLS through a licensing agreement. Listing information is from various brokers who participate in the SmartMLS IDX program and not all listings may be visible on the site. The property information being provided on or through the website is for the personal, non-commercial use of consumers and such information may not be used for any purpose other than to identify prospective properties consumers may be interested in purchasing. Some properties which appear for sale on the website may no longer be available because they are for instance, under contract, sold or are no longer being offered for sale. Property information displayed is deemed reliable but is not guaranteed. Copyright 2026 SmartMLS, Inc.

Hi there! How can we help you?

Contact us using the form below or give us a call.

Send Us A Message:

I agree to be contacted by Robin Blomstrann via call, email, and text for real estate services. To opt out, you can reply 'stop' at any time or reply 'help' for assistance. You can also click the unsubscribe link in the emails. Message and data rates may apply. Message frequency may vary. Privacy Policy.

Do not fill in this field:

This site is protected by reCAPTCHA and the Google Privacy Policy and Terms of Service apply.